Köln Sülz: Helle und großzügige 3-4 Zimmer Eigentumswohnung mit Balkon in besonderer Lage
Objektart
Adresse
Objektdaten
Informationen
Ausstattung
Details
Willkommen im schönen Sülz,
wo diese charmante 3-4 Zimmer-Wohnung im ersten Obergeschoss darauf wartet, Ihr neues Zuhause zu werden.
Mit einer großzügigen Fläche von 96,5 m² und einer Deckenhöhe von 2,80 m bietet diese Wohnung eine ideale Kombination aus Stil, Komfort und modernem Wohnen. Sie liegt im 1. Obergeschoss eines gepflegten Mehrfamilienhauses aus dem Jahr 1954, das fortlaufend modernisiert wurde. Dach, Fenster, Heizung und Fassade wurden bereits erneuert, sodass das Gebäude technisch wie optisch auf einem zeitgemäßen Stand ist. Die Immobilie beherbergt insgesamt acht Parteien und liegt in einer begehrten Wohnlage mit hervorragender Infrastruktur.
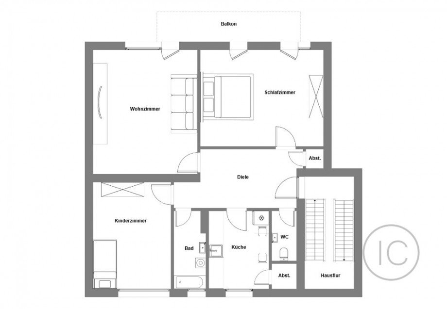
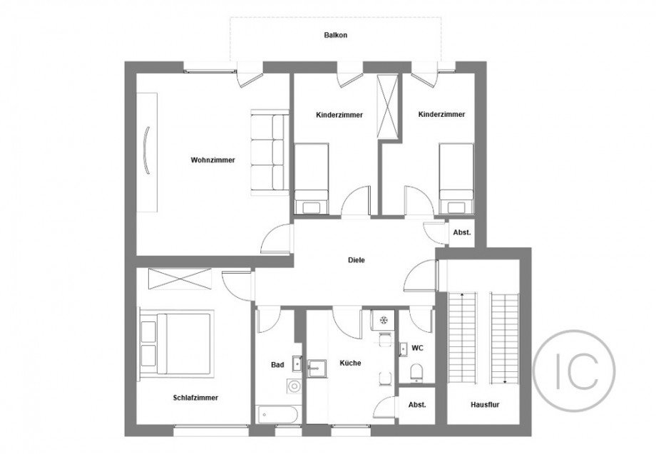
Diese Einheit besticht durch einen flexiblen Grundriss und eine durchdachte Raumaufteilung. Ursprünglich als 4-Zimmer-Wohnung konzipiert, wurden zwei Schlafzimmer miteinander verbunden, um ein besonders großzügiges Raumgefühl zu schaffen. Bei Bedarf lassen sich die Räume jedoch wieder trennen, um den ursprünglichen Zustand wiederherzustellen. Das ruhige Wohnzimmer, das ebenso wie die verbundenen Schlafzimmer nach hinten gelegen ist, bietet Zugang zu einem großen Balkon mit Blick ins Grüne. Mit bodentiefen Fenstern ausgestattet, reihen sich ein weiteres Schlafzimmer sowie die Küche mit praktischem Vorratsraum in das gelungene Raumkonzept ein.
Das Tageslichtbad mit Badewanne wird durch ein separates WC ergänzt, und die große, einladende Diele bietet mit einer zusätzlichen Abstellkammer weitere Stauraummöglichkeiten.
Die Wohnung überzeugt nicht nur mit ihrem Innenraum, sondern auch mit ihren vielseitigen Abstellmöglichkeiten. Ein übergroßer Kellerraum sowie die Nutzung des Dachbodens stehen zur Verfügung. Das gesamte Gebäude sowie die Wohnung selbst strahlen eine perfekte Mischung aus Altbaucharme und modernem Wohnkomfort aus.
Aufteilung:
o Diele mit Zugang zu allen Räumen und Abstellraum
o Wohnzimmer mit Zugang zum Süd-West Balkon
o Schlafzimmer (teilbar in zwei Zimmer) mit zwei Zugängen zum Süd-West Balkon
o Kinderzimmer mit bodentiefem Fenster
o Tageslicht Wannenbad
o Separates WC
o Küche mit großem bodentiefem Fenster und Vorratskammer
o Keller und Speicherabteil
o Gemeinschaftsraum
o Fahrradkeller
Ausstattung:
o Bodenbelage: Hochwertiger Vinylboden
o Isolierverglaste Fenster 2004
o 2.80 m hohe Decken
o weiß geflieste Bäder
o neue Fassade
Attraktive Lage in Köln-Sülz: Perfekte Anbindung und erstklassige Infrastruktur
Die Wohnung befindet sich in Köln-Sülz, einem der begehrtesten Stadtteile des Stadtbezirks Innenstadt. Diese Lage kombiniert urbanes Flair mit einer ruhigen, grünen Umgebung und bietet eine hervorragende Infrastruktur für alle Lebensphasen.
Familien profitieren von der Nähe zu Bildungseinrichtungen: Grundschulen und Kindergärten sind in nur fünf Minuten zu Fuß erreichbar, weiterführende Schulen in nur fünf Minuten mit Bus oder Bahn. Auch die Universität und die Uni-Bibliothek liegen in unmittelbarer Nähe und sind in nur drei Minuten fußläufig zu erreichen.
Für Einkäufe des täglichen Bedarfs stehen Ihnen zahlreiche Geschäfte bereit, die Sie bequem in drei Minuten zu Fuß erreichen. Für das Nachtleben bietet die nahegelegene Zülpicher Straße zahlreiche Bars, Cafés und Restaurants.
- Grundschulen und Kitas in 5 min erreichbar
- weiterführende Schulen mit Bus und Bahn in 5 Min erreichbar
- Ausgehviertel "Zülpicher Straße" in unmittelbarer Nähe
- Einkaufsmöglichkeiten alle fußläufig in 3 Min erreichbar
- Aachener Weiher fußläufig in 15 Min erreichbar
- Unmittelbare Erreichbarkeit der Universität, Uni-Bibliothek in 3 Min fußläufig erreichbar
Entfernungen:
- Köln Innenstadt: Auto 10 Min., Bus/Bahn 20 Min.
- Köln HBF: Auto 10 Min., Bus/Bahn 20 Min.
- Köln Flughafen: Auto 20 Min., Bus/Bahn 35 Min.
- Autobahn: gute Anbindung an die A4 und A555
- Bahnhaltestelle: Linie 9
- Buslinien 130 und 142
Provisionshinweis:
Die o.g. Provision vom Kaufpreis ist verdient und fällig bei notarieller Beurkundung, zahlbar an Immobilien Company Petra Emmer e.K. Wir haben einen provisionspflichtigen Maklervertrag in gleicher Höhe mit dem Verkäufer abgeschlossen.
IMMOBILIEN COMPANY Kundeninformation:
Sollten Sie mit dem Gedanken spielen im Rahmen Ihrer Immobiliensuche, Ihre derzeitige Immobilie zu verkaufen, sind Sie bei uns von Anfang an in den besten Händen - Ihre IMMOBILIEN COMPANY - kompetent und serviceorientiert. Eine Immobilie zu verkaufen oder zu erwerben, stellt Sie vor emotionale, wirtschaftliche und organisatorische Herausforderungen, die Sie mit unserem professionellen Team erfolgreich meistern werden. Nutzen Sie die Möglichkeiten und Marktkenntnisse der IMMOBILIEN COMPANY, damit Sie Ihre Wunschimmobilie zum optimalen Preis finden oder Ihre Immobilie entsprechend verkaufen. Wir stehen Ihnen bei allen Fragen rund um eine erfolgreiche Immobiliensuche, den Immobilienkauf und den Immobilienverkauf zur Verfügung.
Mehr Infos unter www.immobilen-company.net
Bei Fragen zu diesem Objekt erreichen Sie uns telefonisch unter 0221 9904490.
Ansprechpartner
Telefax: 0221 990 449 29
Mobil: 004915254513669
ob@immobilien-company.koeln
Energieausweis (Verbrauchsausweis)
145 kWh / (m²*a) Energieverbrauchskennwert
145 kWh / (m²*a) Energieverbrauchskennwert
145 kWh / (m²*a) Energieverbrauchskennwert
Weitere Informationen
| Wesentlicher Energieträger | GAS |
| Energieausweis gültig bis | 2023-04-25 |
| Energieausweis Jahrgang | vor 1.5.2014 |
| Energieausweis Werteklasse | E |
| Energieausweis Baujahr | 1996 |
| Energieausweis Gebäudeart | Wohngebäude |
| Heizung | Etagenheizung |
| Befeuerung | Gas |
