Köln Innenstadt - Zwei repräsentative Gewerbeeinheiten gegenüber der Kölner Oper
Objektart
Adresse
Objektdaten
Informationen
Ausstattung
Details
Die zum Verkauf stehende Gewerbeeinheit befindet sich im Erdgeschoss eines gepflegten Mehrfamilienhauses in Kölner Innenstadtlage. Das Gebäude wurde 1960 in massiver Bauweise errichtet und über die Jahre fortlaufend modernisiert. Insgesamt umfasst die Wohnungseigentümergemeinschaft 11 Einheiten.
Die ursprünglich als Bankfiliale genutzte Gewerbefläche wurde später funktional in zwei separate Einheiten aufgeteilt. In der linken Einheit befindet sich heute ein Beautysalon, der sich über zwei Ebenen erstreckt. Die rechte Einheit ist an einen Goldhandel vermietet.
Die Gewerbeeinheit stellt innerhalb der WEG den größten Miteigentumsanteil dar.
Die Lage in der Kölner Innenstadt zeichnet sich durch eine sehr gute Erreichbarkeit, hohe Passantenfrequenz sowie eine gewachsene Infrastruktur aus. Direkt gegenüber befindet sich die Kölner Oper, wodurch sich ein attraktiver Blickbezug sowie eine besonders repräsentative Umgebung ergeben.
Die Einheit eignet sich sowohl für Kapitalanleger als auch für Investoren, die eine zentral gelegene Gewerbeimmobilie mit vermieteten Flächen erwerben möchten.
Objektdetails & Ausstattung
o Gewerbeeinheit im Erdgeschoss eines Mehrfamilienhauses
o Aufgeteilt in zwei separate Gewerbeeinheiten
o Ursprünglich Bankfiliale (solide Grundstruktur / großzügige Flächen)
o Größter Miteigentumsanteil innerhalb der WEG
o Insgesamt 11 Einheiten im Gebäude
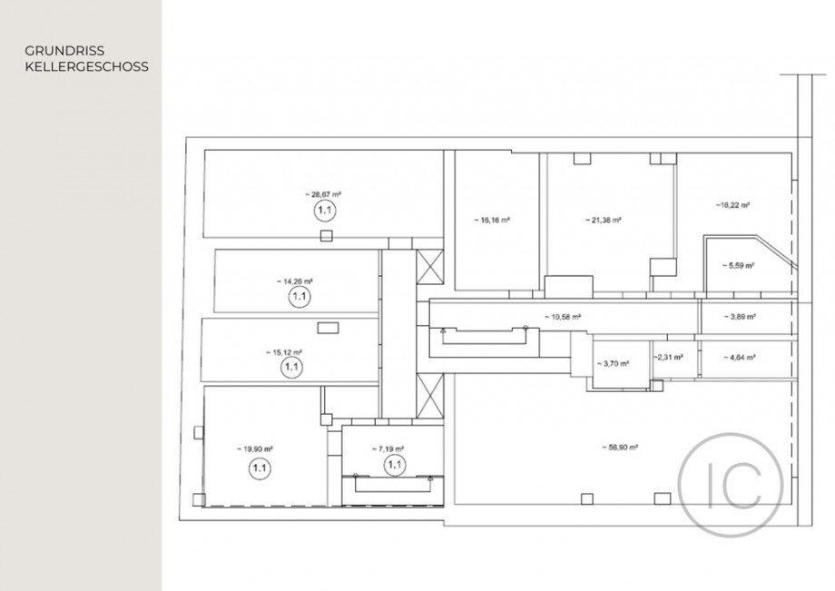
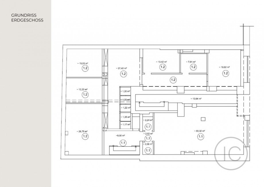
Flächenaufteilung laut Mietverträge
o Einheit rechts: ca. 150 m²
o Einheit links: ca. 168 m²
o Gesamtfläche: ca. 318 m²
Flächenaufteilung laut Teilungserklärung:
o 388,334 / 1.000 MEA Aufteilungsplan Nr. 1
o Nutzfläche 362,88 m²
Nutzung / Mieter
o Rechte Einheit: Goldhandel
o Linke Einheit: Beautysalon
Die Gewerbeeinheit befindet sich in äußerst zentraler Lage der Kölner Innenstadt in der Brüderstraße, unweit von Neumarkt, Schildergasse und Heumarkt. Der Standort gehört zu den stark frequentierten innerstädtischen Bereichen mit hoher Besucher- und Passantenfrequenz.
Direkt gegenüber liegt die Oper Köln, wodurch sich ein repräsentatives Umfeld mit kultureller Strahlkraft ergibt. In der unmittelbaren Umgebung
befinden sich zahlreiche Einzelhandelsgeschäfte, Gastronomiebetriebe, Dienstleister sowie weitere gewerbliche Nutzungen, die für eine kontinuierliche Belebung des Umfelds sorgen.
Die Verkehrsanbindung ist hervorragend.
Die zentralen ÖPNV-Knotenpunkte Neumarkt und Heumarkt sind in wenigen Gehminuten erreichbar und bieten Anschluss an zahlreiche Straßenbahn- und Buslinien. Dadurch ist der Standort sowohl für Kunden als auch für Mitarbeiter optimal erreichbar.
Durch die zentrale Innenstadtlage, die hohe Frequenz sowie die gewachsene Infrastruktur bietet der Standort sehr gute Voraussetzungen für gewerbliche Nutzungen und stellt einen attraktiven Standort für Kapitalanleger und Gewerbetreibende dar.
Provisionshinweis:
Die o.g. Provision vom Kaufpreis ist verdient und fällig bei notarieller Beurkundung, zahlbar an Immobilien Company Petra Emmer e.K.
IMMOBILIEN COMPANY Kundeninformation:
Sollten Sie mit dem Gedanken spielen im Rahmen Ihrer Immobiliensuche, Ihre derzeitige Immobilie zu verkaufen, sind Sie bei uns von Anfang an in den besten Händen - Ihre IMMOBILIEN COMPANY - kompetent und serviceorientiert. Eine Immobilie zu verkaufen oder zu erwerben, stellt Sie vor emotionale, wirtschaftliche und organisatorische Herausforderungen, die Sie mit unserem professionellen Team erfolgreich meistern werden. Nutzen Sie die Möglichkeiten und Marktkenntnisse der IMMOBILIEN COMPANY, damit Sie Ihre Wunschimmobilie zum optimalen Preis finden oder Ihre Immobilie entsprechend verkaufen. Wir stehen Ihnen bei allen Fragen rund um eine erfolgreiche Immobiliensuche, den Immobilienkauf und den Immobilienverkauf zur Verfügung.
Mehr Infos unter www.immobilen-company.net
Bei Fragen zu diesem Objekt erreichen Sie uns telefonisch unter 0221 9904490.
Ansprechpartner
Telefax: 004922199044929
Mobil: 004915254513669
ob@immobilien-company.koeln
Energieausweis (Verbrauchsausweis)
195,40 kWh / (m²*a) Energieverbrauchskennwert
195,40 kWh / (m²*a) Energieverbrauchskennwert
195,40 kWh / (m²*a) Energieverbrauchskennwert
Weitere Informationen
| Wesentlicher Energieträger | GAS |
| Energieausweis gültig bis | 2031-03-17 |
| Energieausweis Jahrgang | ab dem 1.5.2014 |
| Energieausweis Werteklasse | E |
| Energieausweis Baujahr | 1998 |
| Energieausweis Gebäudeart | Wohngebäude |
