Objektart
Adresse
Objektdaten
Informationen
Ausstattung
Details
Dieses moderne Einfamilienhaus liegt sehr zentral in einer ruhigen Gegend. Das Haus ist modern ausgestattet und kann sowohl von einem Paar, als auch einer Familie bewohnt werden. Die Räume sind hell und großzügig gestaltet.
- Erdgeschoss mit offnem Koch-, Wohn- und Essbereich
- großes modernes Tagelichtbad und Arbeitsbereich
- Hauswirtschaftsraum
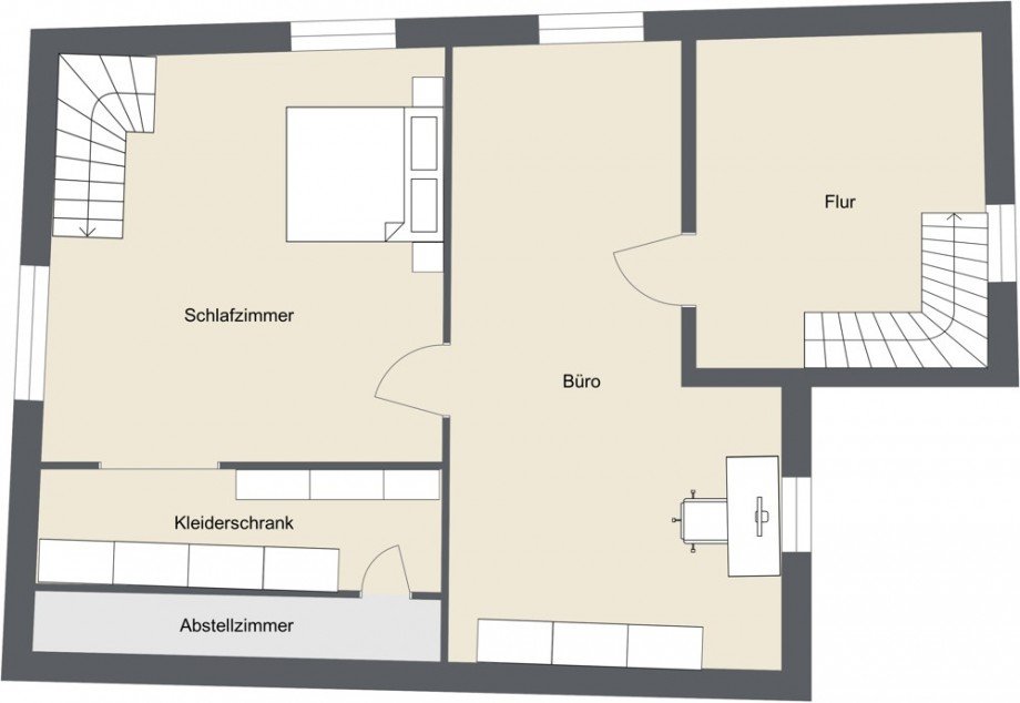
-Obergeschloss Schlafzimmer mit begehbarem Wandschrank
- Arbeitsbereich auch teilbar in 2 Kinderzimmer
- großzügiges Treppenhaus mit Möglichkeit eines weiteren Arbeitsbereiches
-Satteldach mit großer Gaube
- Fassade verputzt
-2 PKW-Stellplätze vor dem Haus
- Schuppen als Kellerersatz
- Bodenbeläge: Fliesen und Teppich
- Heizung: Gas-Brennwerttherme und Fußbodenheizung
- Küche: hochwertige Einbau-Küche mit Einbaugeräte
- Kunststoffenster 3-fach verglast
- hochwertiges Bad mit Badewanne und bodengleicher Dusche
Kerpen
- Grundschulen und Kitas in einem Umkreis von ca. 5 - 6 Kilomneter
- weiterführende Schulen in einem Umkreis von ca. 5 - 7 Kilometer
- Einkaufsmöglichkeiten und ärztliche Versorgung in unmittelbarer Nähe
- Erftkarre in 2,4 km
Entfernungen:
- Köln Innenstadt: Auto 37 Minuten., Bus/Bahn 48 Minuten.
- Köln Flughafen: Auto 38 Minuten., Bus/Bahn 66 Minuten.
- Autobahn: gute Anbindung an die A61 und A4, 8 Minuten
IMMOBILIEN COMPANY Kundeninformation
Sollten Sie mit dem Gedanken spielen im Rahmen Ihrer Immobiliensuche, Ihre derzeitige Immobilie zu verkaufen, sind Sie bei uns von Anfang an in den besten Händen - Ihre IMMOBILIEN COMPANY - kompetent und serviceorientiert. Eine Immobilie zu verkaufen oder zu erwerben, stellt Sie vor emotionale, wirtschaftliche und organisatorische Herausforderungen, die Sie mit unserem professionellen Team erfolgreich meistern werden. Nutzen Sie die Möglichkeiten und Marktkenntnisse der IMMOBILIEN COMPANY, damit Sie Ihre Wunschimmobilie zum optimalen Preis finden oder Ihre Immobilie entsprechend verkaufen. Wir stehen Ihnen bei allen Fragen rund um eine erfolgreiche Immobiliensuche, den Immobilienkauf und den Immobilienverkauf zur Verfügung.
Mehr Infos unter www.immobilen-company.net
Bei Fragen zu diesem Objekt erreichen Sie uns telefonisch unter 0221 9904490.
Ansprechpartner
Telefax: 0221 990 449 29
Mobil: 004917663347453
pe@immobilien-company.koeln
Energieausweis (Bedarfsausweis)
97,78 kWh / (m²*a) Endenergiebedarf
97,78 kWh / (m²*a) Endenergiebedarf
97,78 kWh / (m²*a) Endenergiebedarf
Weitere Informationen
| Wesentlicher Energieträger | GAS |
| Energieausweis gültig bis | 2030-10-12 |
| Energieausweis Jahrgang | ab dem 1.5.2014 |
| Energieausweis Werteklasse | C |
| Energieausweis Baujahr | 2014 |
| Energieausweis Gebäudeart | Wohngebäude |
| Heizung | Fußbodenheizung |
| Befeuerung | Gas |
